KIVI
Premium Garden Sauna
Inspired by the Finnish word for stone, the Kivi model embodies strength, simplicity, and timeless design. Built with precision and a focus on natural materials, Kivi offers a grounded and restorative sauna experience that connects you to the raw essence of nature. With its clean lines, solid construction, and a spacious interior, this model is ideal for those who appreciate understated luxury and authentic Nordic Sauna.
-

Kivi - Original
The Kivi Original is the foundation of our sauna collection — a beautifully crafted, self-contained retreat. With a minimalist footprint and powerful performance, this standalone unit is ideal for those who want an authentic sauna experience in its purest form. Simple, elegant, and ready to transform any outdoor space into a sanctuary of heat and calm.
From £35,000 inc vat
-

Kivi - Flow
The Kivi Flow brings the outdoor sauna experience to life with an integrated 750mm roof overhang and outdoor shower.
Designed for those who love the contrast of hot and cold, this model blends the traditional sauna ritual with the refreshing sensation of open-air rinsing.
From £39,000 inc vat
-

Kivi - Retreat
The Kivi Retreat offers a complete experience with an added changing room — perfect for year-round use. Whether you’re escaping the winter chill or hosting friends for a wellness evening, this model provides space to change, relax, and store essentials, all while maintaining the elegant form and function of the Kivi range.
From £41,000 inc vat
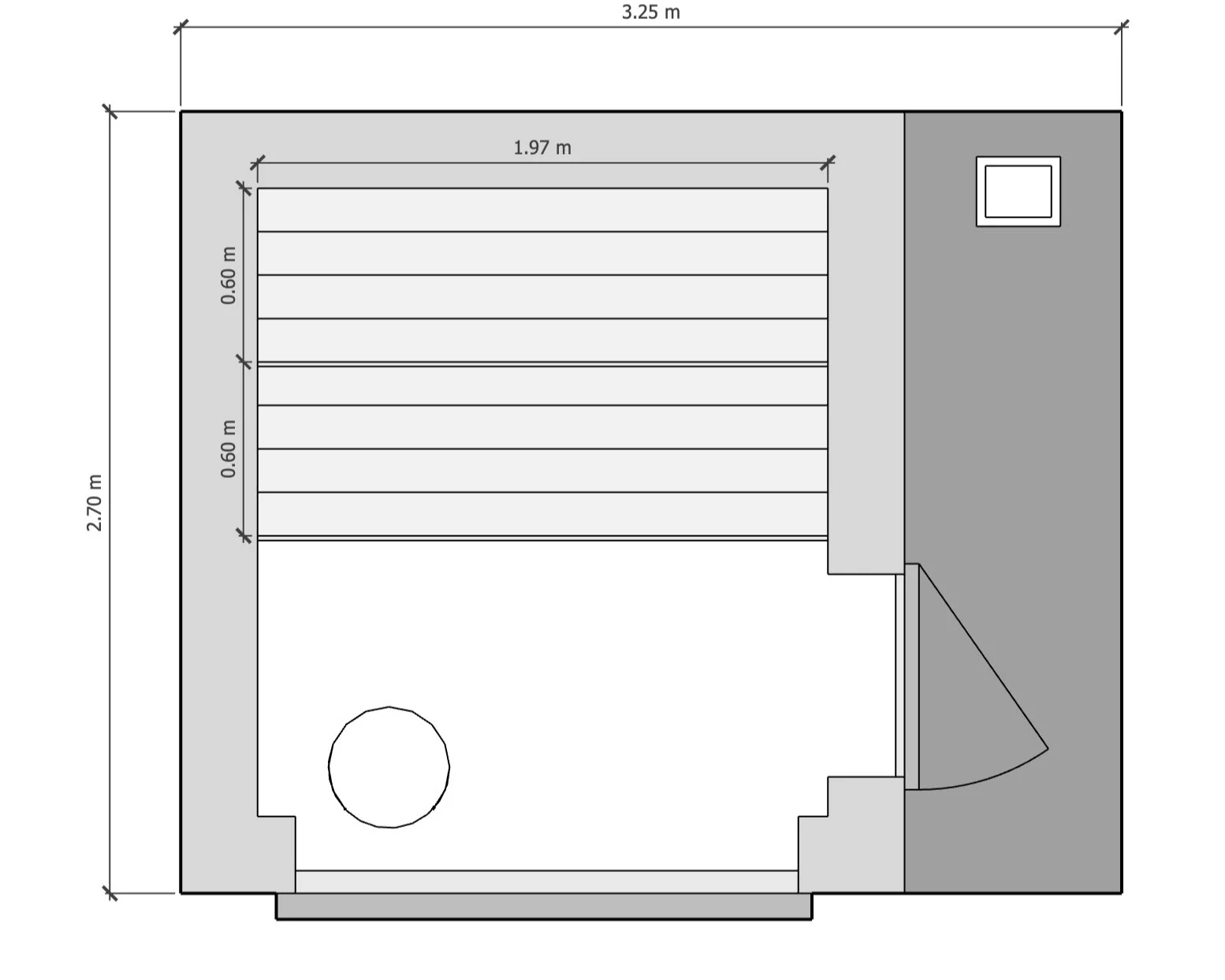
Kivi Sauna Specification
Seats up to 6 people comfortably
Full-height glass wall feature with slimline aluminium frame for an immersive connection to the outdoors
HUUM 10.5kW electric stove delivering a clean, powerful, and soft steam experience
HIVE Mini electric sauna heater info
Heats up to 70° in 60 minutes
Fitted with a HUUM control panel (wifi options available)
Two-tier benches in Aspen or Thermally modified Aspen — knot-free, cool to the touch, and built for comfort
Aspen or thermally modified aspen internal cladding, offering a clean, elegant finish (other cladding available on request including cedar)
Subtle warm-white LED interior and exterior downlighting creating a soft ambient glow
Exterior Cladding choice of natural oiled or black oiled Cedar
Flat roof design Epdm roofing guaranteed to last
Insulated walls with Integrated vapour barrier system for superior heat retention and moisture protection. Expertly made in Finland, the mould-proof, vapour-proof and aluminium foil laminated surfaced panels can withstand temperatures of up to +200 °C
Either Timber Floor with Custom Duckboard or Durable 20mm porcelain tiled floor, water-resistant, easy to clean, and beautiful in contrast to the timber tones
Concrete Base Reinforced base installed by our team and built in position to last or Rigid Steel Base to keep things mobile
Huum
At the core of every Kivi sauna is a premium electric heater — engineered for powerful, consistent heat and that signature soft Finnish steam. We use the HUUM 10.5kW stove, known for its modern design, large stone capacity, and gentle, enveloping löyly. Whether you’re after a dry, intense sweat or a soothing, steamy session, this heater delivers an authentic experience with smart WiFi controls and precision performance. Built to last, built to feel incredible.
Wood and Stone
Step inside a Kivi sauna and you’ll feel the calm in every detail. The interior is clad in premium grade aspen, a pale, knot free timber chosen for its soft touch, low heat retention, and elegant grain. The clean-lined benches are crafted from matching aspen, offering a comfortable, splinter-free seat that stays cool against the skin even in high heat. Underfoot, a 20mm thick porcelain tiled floor provides a refined and durable surface — water-resistant, easy to clean, and cool to contrast the warmth above. The result is a balanced interior that blends natural beauty with everyday practicality. We offer options for thermally modified aspen as well as cedar.